石雄城际正定机场站确定,永久失去了建高铁机场双站合一枢纽可能
石雄城际正定机场站确定,永久失去了建高铁机场双站合一枢纽可能
2023年12月,四川盆地内的成自宜高铁开通, 位于天府机场航站楼下的天府机场站投入运营,标志着国内又多了一座机场航站楼和高铁站合二为一的交通枢纽。

成都天府机场和成自宜铁路航站楼和高铁站双站合一交通枢纽
国内已经开通的航站楼和高铁站双站合一的交通枢纽,还有海南岛东环高铁下穿海口机场站,京雄城际铁路下穿大兴机场站,汉孝城际下穿武汉机场站,济青高铁下穿青岛机场站等十多处。

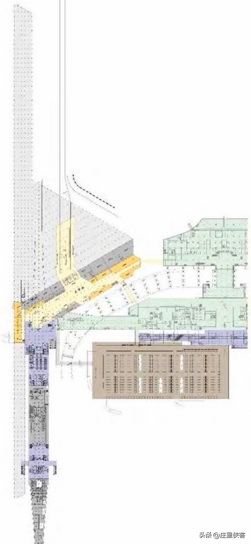
大兴机场

京雄城际与大兴机场合二为一交通枢纽各层平面图
目前正在建设的航站楼和高铁站双站合一的交通枢纽,有京滨高铁下穿天津机场站,宁宣高铁下穿南京机场站等。

京滨高铁和天津滨海机场双站合一交通枢纽

天津滨海机场T3航站楼地下2层高铁换乘层平面图
规划完成,未来会建设的航站楼和高铁站双站合一交通枢纽,有济滨高铁下穿济南机场站,广湛高铁下穿珠三角机场站等 。

济滨高铁下穿济南机场站
石雄城际的计划修建,一度燃起了庄里人也弄成一座机场航站楼和高铁站两站合一交通枢纽的希望。

石雄城际3P模式正定机场站规划
刚刚进行地勘的实际路线显示,石雄城际的正定机场站不再是当年3P模式下计划与正定机场规划T3航站合建方案,而是改到现在京广高铁正定机场站南侧,两高铁站共用现有站房,火车换乘飞机还得像以往那样通过4公里的大巴车摆渡。

国铁推动石雄城际规划正定机场站
历史上,石家庄还真有一次建成两站合一航空高铁枢纽的机会,那还是京广高铁规划设计时期,那时正定机场T2航站楼也同时在建设,如果京广高铁选择直接下穿正定机场方案,开国内先河,同步建设建设正定机场航站楼和高铁站合二为一交通枢纽还是有自然条件的。可惜,因为种种原因,高铁从机场南端绕过,建设双站合一的机会也就错过了。

京广高铁下穿正定机场比选方案
十多年前,2008~2012年间京广高铁设计时,在通过正定机场附近时有两套路线比选方案,一套是是从新乐市杜固镇东义和庄南到正定县新安镇吴兴村西基本上直接拉条直线,路线长度31.2公里;另一套是如今实施的从机场南侧绕过的方案,路线长度32.7公里,虽然比另一个方案长了1.5公里,但是因为没有下穿机场隧道和机场地下站,铁路方面投资更省。

下穿同步建设的正定机场T2航站楼位置图
可能就是因为投资原因,这个被铁路方面放弃的直通机场路线方案,从2010~2013年间修建,基本上和京广高铁同步建设的正定机场T2航站楼北侧通过,路线还恰好经过T2和规划建设的T3航站楼结合部。

正定机场鸟瞰图
如果京广高铁和T2航站楼都晚建10年,放在现在修建,地方上一定会争取高铁下穿机场的方案,哪怕自己配套部分资金也会落实。京广高铁直接下穿正定机场方案要在藁城区增村镇吴村铺西南到新元高速东侧东平乐村,正定机场规划占地范围内修建4.5公里长隧道,在正定机场区域修建高铁地下机场站,车站出口设在T2与T3航站结合部,堪称是机场航站和京广高铁站合二为一完美方案。

高铁站和正定机场T2、T3航站楼合二为一方案
如果当年京广高铁按下穿机场方案布线,路线会在如今已建成路线西侧新乐市杜固镇东五楼村南跨大沙河,依次在新乐市邯邰镇渔砥村、曲都村西北穿过,在现在的新乐东京港澳高速收费站处穿越京港澳高速。

京广高铁下穿正定机场比选方案机场北段
下穿机场方案路线在新乐市马头铺镇南北双晶之间向西南延伸,在马头铺镇东庄村村南跨越木刀沟,在藁城区增村镇吴村铺和正定县新城铺镇小吴村之间穿行,吴村铺村西南改地下隧道穿越正定机场规划占地范围,在新元高速东侧正定县新城铺镇东平乐村出地面,在东平乐西南跨越新元高速。

京广高铁下穿正定机场必选方案机场段
路线继续向西南,在正定县西平乐乡东杜村西南跨越107国道和京广铁路,在现今路线西北跨越老磁河,在正定县新安镇吴兴村西北南水北调东岸和现今路线接轨。

京广高铁下穿正定机场比选方案机场南段
下穿正定机场方案地面段除了穿越正定县平乐县东杜村外,都是从田地中穿行,不经过村庄,拆迁量很小。
京石客专实际建设时,地方和铁路协调不如现在这么紧密,铁路部门选择了南线方案,路线绕开机场,向南兜了个大圈子,路线长度绕成了32.7公里比通过机场地下的直线路线长了1.5公里,开始是还未考虑机场附近设站,还是地方争取后,才在现在位置临时后加了正定机场站。高铁和飞机间换乘只能通过二次汽车摆渡。

石雄城际京广高铁机场站南设站方案
如今石雄城际也放弃了在正定机场内建站的设想,在现在机场高铁站南侧设立城际机场站,国际庄永远失去了机场和高铁两站合一、同站换乘的机会了,好在规划的市郊铁路S2线将会连接正定机场高铁站和机场航站楼,又提供了一种换乘方式。
现在回过头再看当年的事儿,如今的结果真是让人唏嘘。
-
- 法兰西航空工业的骄傲:阵风战斗机,世界上最先进的战斗机之一!
-
2025-05-10 11:32:39
-
- 14个免费的AE模板网站来了,小白也能玩出酷炫特效
-
2025-05-10 11:30:24
-
- 14个免费的AE模板网站来了,小白也能玩出酷炫特效
-
2025-05-10 11:28:10
-
- 核能时代的警钟:回顾三里岛核电站事故,以及它对我们的警示
-
2025-05-10 11:25:56
-
- 陈凯歌父亲对《霸王别姬》进行过指导,但影片导演是陈凯歌不是他
-
2025-05-10 11:23:42
-
- 30岁成家没人觉得是晚婚:想明白了再结婚,是对感情最大的尊重
-
2025-05-10 11:21:28
-
- “夸克联盟”涉嫌非法经营
-
2025-05-10 11:19:13
-
- 神秘国度朝鲜,人均工资那么低,为什么还过得如此幸福呢?
-
2025-05-10 11:16:59
-
- 上海长途客运总站:8月8日起至南通市等线路逐步运行
-
2025-05-10 11:14:45
-
- 关于20美元你知道多少?一张它的假钞,就引发了一场美国大骚乱
-
2025-05-10 11:12:31
-
- 《续写乡爱》27:广坤视察小蒙豆制品厂,刘英发现玉田暧昧聊天
-
2025-05-10 11:10:17
-
- 人间天使李知恩涉抄袭风波,音乐才女形象遭受重创,陷岌岌可危?
-
2025-05-10 11:08:02
-
- 口碑炸裂!神剧!《我们与恶的距离》
-
2025-05-10 11:05:48
-
- 英国首相张伯伦简介 张伯伦与《慕尼黑协定》
-
2025-05-10 11:03:34
-
- 南京北站重磅规划获批
-
2025-05-10 11:01:20
-
- 4本主角智商爆表的小说,《惊悚乐园》上榜,百看不厌零差评
-
2025-05-10 10:59:06
-
- 中国女排五连冠功臣——“独臂将军”陈招娣的一生
-
2025-05-10 10:56:51
-
- 老城新都——三孝口的前世今生
-
2025-05-10 01:01:17
-
- 中国内地后摇圈中的扛鼎乐团–––––惘闻
-
2025-05-10 00:59:02
-
- 恒大能否像万达一样上演王者归来
-
2025-05-10 00:56:48



农村留守妇女无聊寂寞甘愿出轨,于情于理不合,有违伦理道德
盘点现任福州长乐籍优秀企业家